18507312158
13808468438
13808468438
分类立式餐厨垃圾泵发布:长沙长轴泵厂家湖南立佳机械 浏览人数: 发布时间:2019/12/11 22:31:19
五、CCB型餐厨垃圾浆液处理泵性能参数表
| 流量 | 扬程 H | 转速 n | 轴功率 Pa | 配带电动机 | 效率 η | 必需 汽蚀 余量 | 整机 重 | |
功率 | 型号 | ||||||||
m3/h | m | r/min | kw | kw | % | m | kg | ||
50CCB8-20 | 6.4 8 9.6 | 21 20 19 | 2950 | 0.81 0.91 0.92 | 4 | Y112M-2 | 45 48 54 | 3.0 3.0 3.5 | 200 |
65CCB8-50 | 6.4 8 9.6 | 53 50 48 | 2950 | 2.0 2.2 2.3 | 5.5 | Y132M-2 | 47 50 55 | 3.0 3.0 3.5 | 250 |
65CCB10-20 | 8 10 12 | 21 20 19 | 1480 | 0.96 1.1 1.2 | 5.5 | Y132S-4 | 48 51 55 | 3.0 3.0 3.5 | 240 |
100CCB30-25 | 24 30 36 | 26 25 24 | 1480 | 2.6 3.0 3.4 | 7.5 | Y132M-4 | 65 68 70 | 3.0 3.0 3.0 | 350 |
125CCB150-25 | 90 150 180 | 30 25 20.6 | 2950 | 12.9 15.3 16.0 | 22 | Y180-2 | 57 67 63 | 4.7 5.2 5.7 | 570 |
125CCB135-32 | 80 135 160 | 36 32 28 | 2950 | 13.3 18.1 19.7 | 30 | Y200L1-2 | 59 65 62 | 4.7 5.2 5.7 | 630 |
150CCB180-25 | 108 180 216 | 27.2 25 23.2 | 1480 | 13.6 18.3 21.0 | 30 | Y200L-4 | 59 67 65 | 3.5 4.0 4.5 | 920 |
150CCB200-32 | 120 200 240 | 34 32 29 | 1480 | 18.5 25.6 28.7 | 37 | Y225S-4 | 60 68 66 | 3.5 4.0 4.5 | 970 |
200CCB300-25 | 180 300 360 | 28 25 22 | 1480 | 21.8 28.8 31.3 | 37 | Y225S-4 | 63 71 69 | 3.8 4.3 4.8 | 1150 |
200CCB270-32 | 162 270 324 | 35.2 32 27.8 | 1480 | 25.9 34.6 37.2 | 45 | Y225M-4 | 60 68 66 | 3.8 4.3 4.8 | 1280 |
250CCB550-25 | 330 550 630 | 27.1 25 22 | 1480 | 37.9 50.6 53.2 | 75 | Y280S-4 | 64 74 71 | 5.0 5.5 6.0 | 1860 |
250CCB500-32 | 300 500 570 | 37.3 32 28.5 | 1480 | 48.4 59.7 61.5 | 75 | Y280S-4 | 63 73 72 | 5.0 5.5 6.0 | 1950 |
300CCB650-22 | 390 650 750 | 25 22 20 | 980 | 42.2 53.4 56.8 | 75 | Y315S-6 | 63 73 72 | 4.0 4.5 5.0 | 2530 |
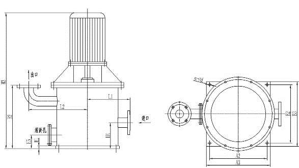
六、CCB型餐厨垃圾浆液处理泵安装尺寸表

型号 | L1 | L2 | H1 | H2 | H3 | H4 | H5 | A2 | A3 | B2 | B3 | n-φd |
50CCB8-20 | 335 | 460 | 20 | 490 | 1050 | 200 | 105 | 450 | 500 | 450 | 500 | 4-φ18 |
65CCB8-50 | 335 | 460 | 20 | 490 | 1050 | 200 | 105 | 450 | 500 | 450 | 500 | 4-φ18 |
65CCB10-20 | 335 | 460 | 20 | 490 | 1055 | 200 | 105 | 450 | 500 | 450 | 500 | 4-φ18 |
100CCB30-25 | 335 | 460 | 20 | 537 | 1140 | 200 | 105 | 450 | 500 | 450 | 500 | 4-φ18 |
125CCB150-25 | 335 | 460 | 20 | 550 | 1310 | 200 | 105 | 450 | 500 | 450 | 500 | 4-φ18 |
125CCB135-32 | 335 | 460 | 20 | 550 | 1420 | 200 | 105 | 450 | 500 | 450 | 500 | 4-φ18 |
150CCB180-25 | 430 | 530 | 25 | 630 | 1430 | 220 | 125 | 550 | 600 | 550 | 600 | 4-φ18 |
150CCB200-32 | 430 | 530 | 25 | 630 | 1530 | 220 | 125 | 550 | 600 | 550 | 600 | 4-φ18 |
200CCB300-25 | 430 | 570 | 25 | 780 | 1580 | 220 | 150 | 550 | 600 | 550 | 600 | 4-φ18 |
200CCB270-32 | 430 | 610 | 25 | 780 | 1650 | 220 | 150 | 550 | 600 | 550 | 600 | 4-φ18 |
250CCB550-25 | 450 | 680 | 25 | 970 | 1830 | 250 | 180 | 580 | 630 | 580 | 630 | 4-φ18 |
250CCB500-32 | 450 | 730 | 25 | 970 | 1830 | 250 | 180 | 580 | 630 | 580 | 630 | 4-φ18 |
300CCB650-22 | 450 | 840 | 25 | 1150 | 2360 | 250 | 180 | 580 | 630 | 580 | 630 | 4-φ18 |

进出口法兰 | 清淤口法兰 | ||||||||||||
DN | D1 | D2 | D3 | b | f | n-φd | DN | D1 | D2 | D3 | b | f | n-φd |
50 | φ99 | φ125 | φ165 | 20 | 3 | 4-φ18 | 100 | φ114 | φ136 | φ160 | 20 | 3 | 6-φ12 |
65 | φ118 | φ145 | φ185 | 20 | 3 | 4-φ18 | 100 | φ114 | φ136 | φ160 | 20 | 3 | 6-φ12 |
100 | φ156 | φ180 | φ220 | 22 | 3 | 8-φ18 | 100 | φ114 | φ136 | φ160 | 20 | 3 | 6-φ12 |
150 | φ211 | φ240 | φ285 | 24 | 3 | 8-φ22 | 150 | φ199 | φ225 | φ265 | 20 | 3 | 8-φ18 |
200 | φ266 | φ295 | φ340 | 24 | 3 | 8-φ22 | 200 | φ254 | φ280 | φ320 | 22 | 3 | 8-φ18 |
250 | φ319 | φ350 | φ395 | 26 | 3 | 12-φ22 | 250 | φ309 | φ335 | φ375 | 24 | 3 | 12-φ18 |
300 | φ370 | φ400 | φ445 | 26 | 4 | 12-φ22 | 300 | φ363 | φ395 | φ440 | 24 | 3 | 12-φ22 |
聚焦行业资讯,实时播报行业动态
新闻动态
更多+常见问题
更多+立式液下长轴泵常见故障有哪些?
立式液下长轴泵在长期运行中易出现多种故障,立式液下长轴泵最常见的三大类故障是“不出水或流量不足”“异常振动与噪音”“启动困难或无法启动”,其中以吸入侧问题、轴系不稳定和电气系统故障为根本诱因,占现场故障案例的80%以上。···
怎样判断立式液下长轴泵的磨损程度?
立式液下长轴泵在含腐蚀性介质和固体颗粒的复杂工况下运行时,部件磨损是导致立式液下长轴泵性能下降和突发故障的主要原因。最可靠的判断方法是“运行参数监测+定期拆检+无损检测”三结合,其中压力下降超过20%、振动加剧和目视表面损伤是立式液下长轴泵最直接的磨损信号。···
立式液下长轴泵的维护周期是多久?
立式液下长轴泵的维护周期需根据运行工况、介质特性和监测数据综合确定,在常规工况下,建议立式液下长轴泵每500小时更换一次润滑油,每2000小时进行一次全面检查,每6个月至1年安排一次周期性大修;但在含腐蚀性介质、含固颗粒等高危工况下,立式液下长轴泵应缩短至每3个月检查一次,并结合振动、温度等状态监测结果实施动态调整。···
怎样优化立式液下长轴泵的效率?
立式液下长轴泵的效率优化应优先从“水力设计优化+系统匹配+运行调控+材料升级”四方面协同推进,最有效的路径是确保立式液下长轴泵在最佳效率点(BEP)附近运行,减少水力、容积和机械三类损失,同时优化立式液下长轴泵吸入条件与管路系统,可实现立式液下长轴泵整体能效提升20%-40%。···
立式液下长轴泵相比潜水泵的优势
立式液下长轴泵相比潜水泵在多个关键维度上具备显著优势,最突出的优势是“电机外置带来的高安全性与易维护性”,尤其适用于腐蚀性、高温或含固体颗粒的恶劣工况,能有效避免电机进水损坏风险,并支持在线检修与局部更换,大幅降低立式液下长轴泵全生命周期运维成本。···
怎样预防立式液下长轴泵的磨损问题?
立式液下长轴泵在含泥沙、颗粒物或腐蚀性介质中运行时,磨损是导致性能衰减和寿命缩短的主因。最有效的预防策略是“材料选型+工况控制+定期维护”三位一体,从源头减少立式液下长轴泵磨损冲击,延长立式液下长轴泵关键部件使用寿命。···
如何实时监控立式液下长轴泵的运行状态?
立式液下长轴泵在高危工况下长期运行,实时监控是预防立式液下长轴泵故障、保障系统稳定的核心手段。最有效的监控方式是构建“多参数传感+智能分析+远程可视化”的工业物联网体系,通过振动、液位、温度、电流等关键参数的24小时在线监测,结合阈值报警与趋势预测,实现从被动响应到主动预防的立式液下长轴泵运维升级。···
如何优化维护计划延长立式液下长轴泵寿命?
立式液下长轴泵在含泥沙、颗粒物等复杂工况下运行时,寿命损耗快的主要原因在于耐磨部件磨损、振动加剧和密封失效。要延长立式液下长轴泵使用寿命,必须从“被动维修”转向“系统性预防维护”,最有效的策略是建立基于工况特征的差异化维护计划,结合关键参数监控与周期性干预,实现寿命延长30%以上。···
立式液下长轴泵在复杂工况下如何选型?
立式液下长轴泵在复杂工况下的选型,首要原则是根据介质特性、工艺参数和运行环境进行系统匹配,优先选择耐腐蚀、抗磨损、结构稳定且具备高汽蚀余量适应能力的立式液下长轴泵泵型。复杂工况通常涉及高温、高压、强腐蚀、含固颗粒或频繁启停等挑战,需从材料、水力设计、密封结构和配套标准多维度综合评估立式液下长轴泵选型。···
如何计算立式液下长轴泵的轴功率?
立式液下长轴泵的轴功率计算,核心是根据流量、扬程、介质密度和泵效率等参数,通过标准公式进行精确推算。···
电话咨询
微信咨询
返回顶部